Trilocale in vendita

Budrio, Via antonio gramsci
€ 147.000
3 locali 3 locali
70 Mq 70 Mq
1 bagno 1 bagno

Trilocale in vendita

Budrio, Via antonio gramsci

Descrizione annuncio

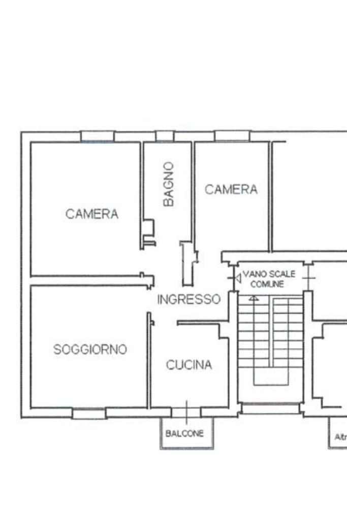
Nel comune di Budrio, a pochi passi dal centro in via Gramci, è disponibile un appartamento in vendita situato all'ultimo piano di un palazzo di 6 unità.

L'immobile di 70mq offre spazi ben distribuiti, ideali per chi cerca una soluzione abitativa funzionale. L'appartamento è dotato di due camere da letto, una matrimoniale e una singola, un soggiorno separato dalla cucina abitabile, perfetta per chi ama cucinare e trascorrere momenti conviviali. Gli infissi e gli impianti sono stati ristrutturati nel 1998, garantendo efficienza e comfort.

La caldaia, installata nel 2008, assicura un riscaldamento affidabile. Inoltre, l'appartamento è dotato di un impianto canalizzato di aria condizionata, che offre un clima piacevole durante i mesi più caldi e funge anche da riscaldamento in quelli più freddi.

Questa proprietà rappresenta un'opportunità interessante per chi desidera vivere in una zona tranquilla, senza rinunciare alla comoditàdi avere tutti i servizi del centro a portata di mano.

Libera a breve.

Fissa un appuntamento per visionare l'immobile chiama lo 051.802022.

Mostra tutto

Nelle vicinanze

Trasporto pubblico Trasporto pubblico
Budrio
Budrio
330 m
Budrio Centro
Budrio Centro
610 m
BUDRIO - CROCETTA
BUDRIO - CROCETTA
150 m
BUDRIO - STAZIONE
BUDRIO - STAZIONE
300 m
Scuole Scuole
Nido d'infanzia don Cadmo Biavati
150 m
Liceo Scientifico "Giordano Bruno"
170 m
ITIS IPIA "Giordano Bruno"
180 m
Scuola d'infanzia paritaria Sacro Cuore
210 m
Scuole medie
340 m
Farmacia Farmacia
Farmacia
270 m
Gnudi
560 m
Comunale
690 m
Ospedali Ospedali
Ospedale di Budrio
250 m
Ospedali
380 m
Centro Protesi INAIL
1,8 Km
Supermercati Supermercati
Coop
670 m
CONAD Budrio
740 m
Negozi Negozi
Erboristeria
350 m
Bosi
390 m
Negozi
460 m
Ferroni Marina
2,2 Km
Bar Bar
Bar
2,3 Km
Ristoranti Ristoranti
Ristorante Il Giardino
220 m
Ristorante Pizzeria
450 m
Ristoranti
470 m
Il portichetto
510 m
Ristorante Antica Trattoria Del Mulino
680 m
Mostra tutto

Caratteristiche

Rif.:
61120128
Piano:
3 di 3
Balconi:
1
Camere da letto:
2
Arredamento:
Parziale
Condizionamento:
Autonomo
Mostra tutto
Prezzo Prezzo
€ 147.000
Rata mutuo Rata mutuo
€ 694 / mese
Spese annue Spese annue
€ 550
Proponi il tuo prezzoProponi il tuo prezzo

Classe Energetica

G
G
G
G
G
G
G
G
G
EP invernale del fabbricato:
EP estiva del fabbricato:
Anno di costruzione:
1968
Riscaldamento:
Autonomo
Tipo impianto:
A radiatori
Tipo alimentazione:
Metano

Ti interessa visionare l'immobile?

Fissa un appuntamento  Fissa un appuntamento

Richiedi informazioni

Clicca su Leggi per aprire l'informativa
* Questi campi sono obbligatori

Calcola il tuo mutuo

Semplice e senza impegno
Anticipo

( % )
Mutuo

( % )

pochi semplici passi

inserisci i tuoi dati
Questionario completato
Grazie per aver richiesto un appuntamento senza impegno con un nostro Consulente del Credito e Assicurativo.

Hai inserito correttamente tutti i dati necessari e a breve riceverai una e-mail con un link da convalidare per inviare i tuoi dati.
Affiliato
Azienda.net Srl
Via Bissolati, 72 40054 Budrio (BO)

Il nostro staff


  • Barbara D'Amilo
    Coordinatrice

  • Stefano Galletti
    Affiliato

  • Pietro Ranieri
    Collaboratore

  • Denise Montanari
    Responsabile

  • Simone Mezzapelle
    Collaboratore
Via Bissolati, 72 40054 Budrio (BO)
Zona: Budrio-Mezzolara-Vedrana-Bagnarola-Vigorso-Prunaro-Maddalena di C.
Mostra su mappa
Orari: dal lunedì al venerdì: 09.00 - 13.00.15.00 - 20.00; sabato: 09.00 - 13.00
Affiliato
Azienda.net Srl
Via Bissolati, 72 40054 Budrio (BO)

2025 Tecnocasa Franchising S.p.A. - P. IVA 08365160152 - Via Monte Bianco 60/A 20089 Rozzano (MI). Ogni agenzia ha un proprio titolare ed è autonoma. Privacy policy | Policy utilizzo | Cookie policy